锦华装饰
400-155-8898

发布时间:2025-08-14阅读次数:999次
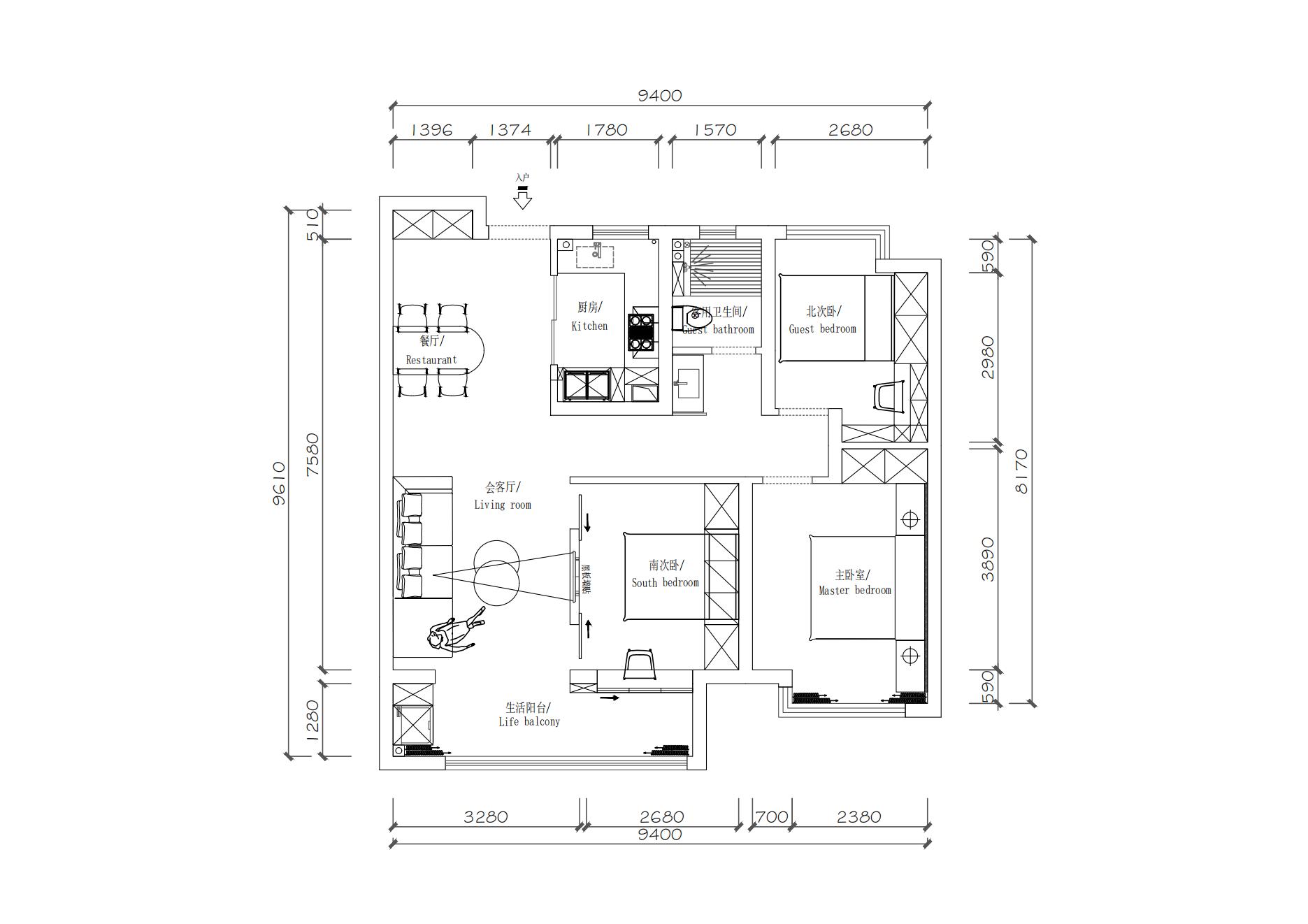
奥林广场-现代简约风

装修模式:全包 风格:现代简约 人气:999
户型:三室两厅 片区:龙湖区 装修面积:128平

设计师:高蝶

公   司:光彩

电   话:

设计师级别:全案设计师

收费标准:

设计理念:用最美的颜色塑造最美的空间

预约





该设计师其它作品

  • 品质之选

    蚌埠家装示范品牌

  • 设计专家

    代表地区优秀设计声音

  • 放心工程

    集25年工程管理经验之大成

  • 全案管家

    省时、省力更省心