锦华装饰
400-155-8898

发布时间:2025-11-03阅读次数:120次
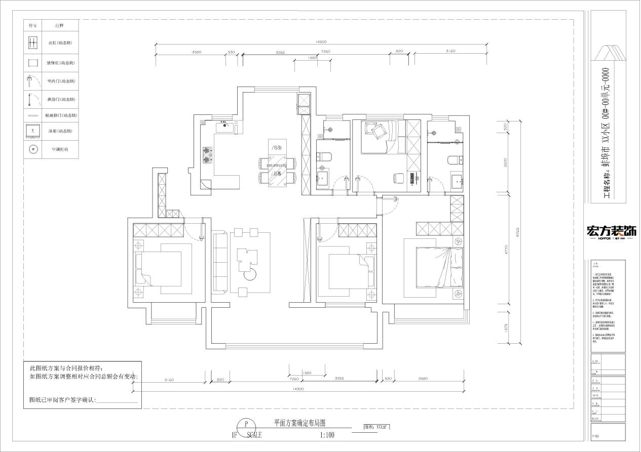
金鹏玖玖

装修模式:全包 风格:现代简约 人气:120
户型:四室两厅 片区:淮上区 装修面积:

设计师:王玉刚

公   司:淮上

电   话:

设计师级别:全案设计师

收费标准:

设计理念:设计源于生活 设计高于生活 设计改变生活

预约

该设计师其它作品

  • 品质之选

    蚌埠家装示范品牌

  • 设计专家

    代表地区优秀设计声音

  • 放心工程

    集25年工程管理经验之大成

  • 全案管家

    省时、省力更省心